MTB ONE



Gerne machen wir Ihnen hier ein Angebot für den Kauf eines modernen Hauses mit einer Grundfläche ca. 35 m² Grundfläche und einer Nutzfläche von insgesamt ca. 42m² auf zwei Ebenen. Unser Angebot umfasst sämtliche vorgefertigten Elemente, die im  Werk hergestellt werden. Die Montage des Hauses erfolgt mithilfe einer detaillierten Anleitung, die jeden Arbeitsschritt Schritt für Schritt erklärt. Darüber hinaus erhalten Sie eine Liste aller benötigten Materialien für jeden einzelnen Schritt. Das Set beinhaltet alle Materialien, die erforderlich sind, um das Haus zu einem geschlossenen Zustand zu bringen – von vorgefertigten Wandpaneelen bis hin zu Schaumstoff, Membranen und Schrauben. Alle Materialien stammen von namhaften Unternehmen wie Budmat, Swiss Krono, MTB Modules, Veka und Marcopol. Während der Produktionsphase werden alle Elemente bereits zugeschnitten und nummeriert.


Sollten Sie nicht selbst die Montage durchführen wollen, nennen wir Ihnen gerne ein erfahrenes Unternehmen in Ihrer Region, das mit unseren Modulhäusern vertraut ist.

Eckdaten:


    Grundfläche         ca. 35m²

    Nutzfläche            ca. 42m²

    Länge                    6.94 m

    Breite                     4.97 m

Was genau kaufen Sie?


Der MTB ONE Hausbausatz zur Selbstmontage samt ausführlicher, multimedialer Bauanleitung.
Die Grundbestellung umfasst alle Elemente, mit denen Sie das Haus genau so zusammenbauen können.

Die genaue Auflistung des Inhalts des Sets:
– 2x Dachfenster (Dreifachverglasung)
– Einbruchhemmende Eingangstür
– Badezimmerfenster (Dreifachverglasung)
– Balkonfenster (Dreifachverglasung)
– SIP-Platten (17,4 cm, EPS80-Kern 15 cm + 2 x 12 mm OSB-3) als Elemente Außenwände, Trennwände, Zwischengeschoss und Dach
– Konstruktionsbalken (C24 Scandinavian, vierseitig gehobelt): Boden, Bogen, Giebel, Trennwände, Wand, Dach, Mezzanine)
– Kiefernbalken: Baumstämme
– Dachuntersicht
– winddichte Membranen
– Fassadenlatten
– Torx-Zimmermannsschrauben-Set
– Montageschäume
– Schaumkanone
– Abdichtung zum Schutz des unteren Teils der Außenwand
– Reibe aus Polystyrol
– Hefter vom Typ “Nehmer” + Heftklammern
– ein Streifen Mineralwolle
– Grundierungsfolie
– Fassadenplatten
– „Stehfalz“-Überdachung
– „Stehfalz“-Fassadenplatten
– Kehl- und Blecharbeiten
– Dachrinnensysteme – Stahl, oval – Farbe: Anthrazit

Allgemeine Information


  • Das Haus im Inneren ist unvollendet, in seiner eigenen Ausführung und Anordnung.
  • Elemente wie Fundamentplatte und elektrohydraulische Installationen sind nicht im Auftrag enthalten. Sie sind optionale Extras.
  • Sehen Sie sich das dem ausgewählten Hausmodell zugeordnete Zusatzsortiment in unserem aktuellen Katalog an.


Beschreibung


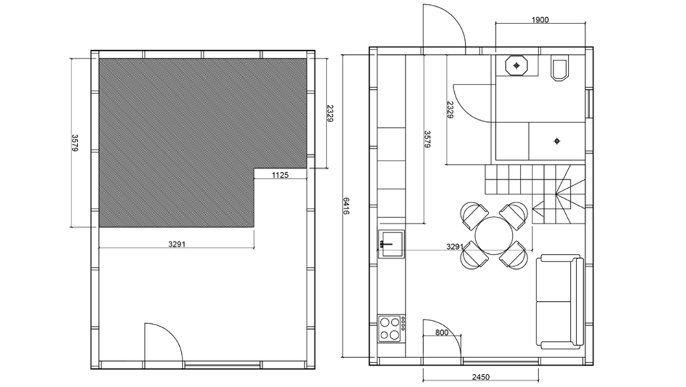
MTB ONE ist ein Modell mit einer Nutzfläche von ca. 42m²


Es bietet mit seiner außergewöhnlichen Funktionalität höchsten Standard


  • Die Firsthöhe beträgt sogar 4,92 m, wodurch wir im Erdgeschoss die optimale Höhe von 250 cm erreichen. Es ermöglicht eine komfortable Nutzung des Hauses, es ist perfekt und überfordert nicht.
  • Die Breite und Gesamtlänge betragen 4,94 m / 6,91 m.
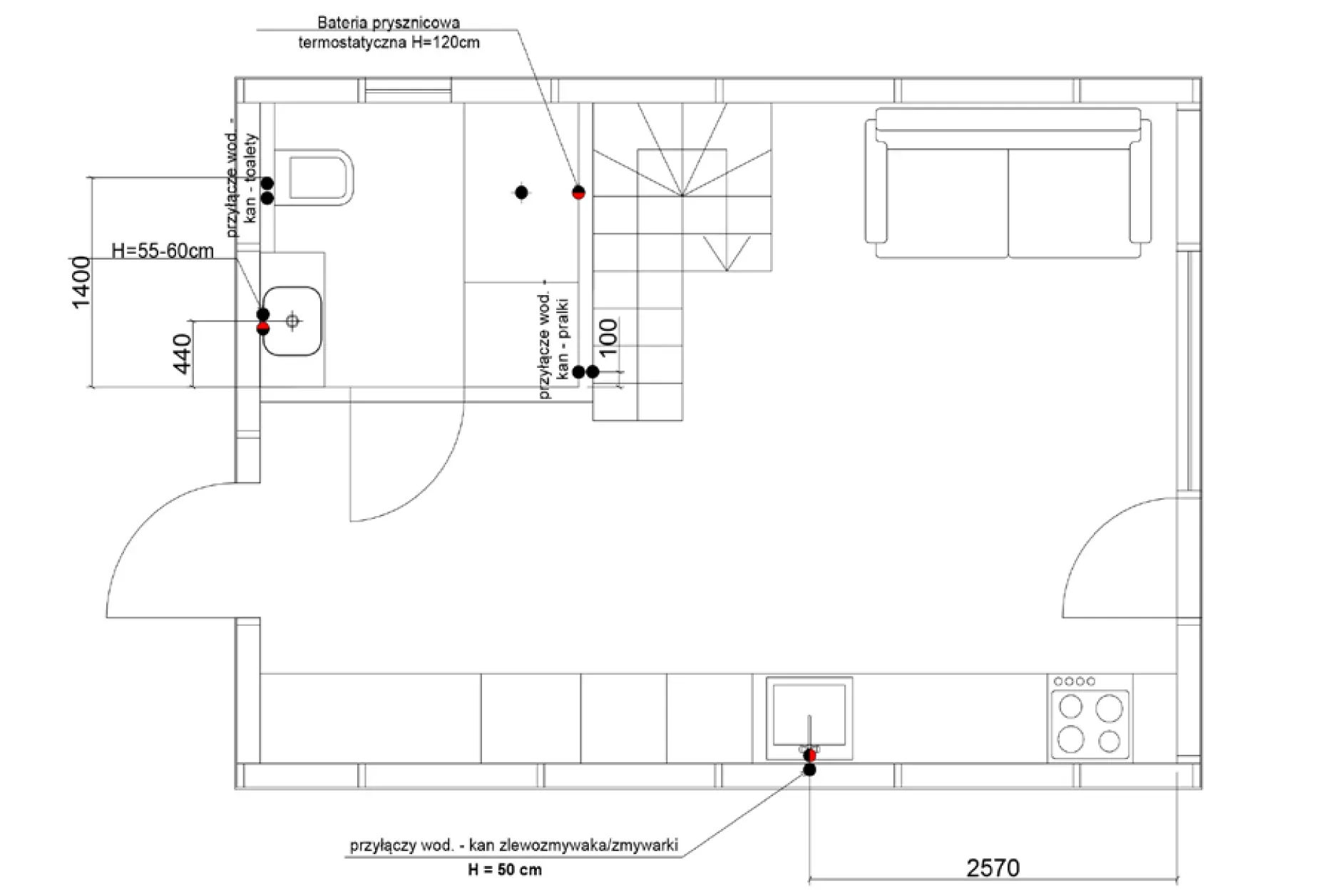
  • Dank der durchdachten Entwicklung dieses Bereichs erhalten wir einen Platz für ein komfortables Badezimmer, das durch ein Fenster mit einer Höhe von 122 cm und einer Breite von 62 cm beleuchtet wird. Es ist Dreifachverglasung, PVC, mit der Möglichkeit zum Öffnen und Kippen. Die Farbe der Fassade ist außen anthrazit und innen weiß. Fenster montiert auf einem Expansionsband.
  • Das Herzstück des Hauses ist ein geräumiges Wohnzimmer, letztendlich mit einer Küchenzeile und einem Vorraum.
  • Das Modell ist mit einer einbruchhemmenden, ergonomischen Eingangstür von 90 cm Breite ausgestattet. Sie sorgen für eine komfortable Nutzung. Hergestellt aus hochwertigem Material. Sie sind schwer und leise.
  • Große, fast wandfüllende Balkonfenster erregen bei unseren Modellen große Bewunderung. Dreifachverglasung, PVC, 240 cm hoch und 250 cm breit. Ein Teil ist feststehend, der andere lässt sich bis zu 80 cm weit öffnen und kippen. Auch auf dem Erweiterungsband montiert.
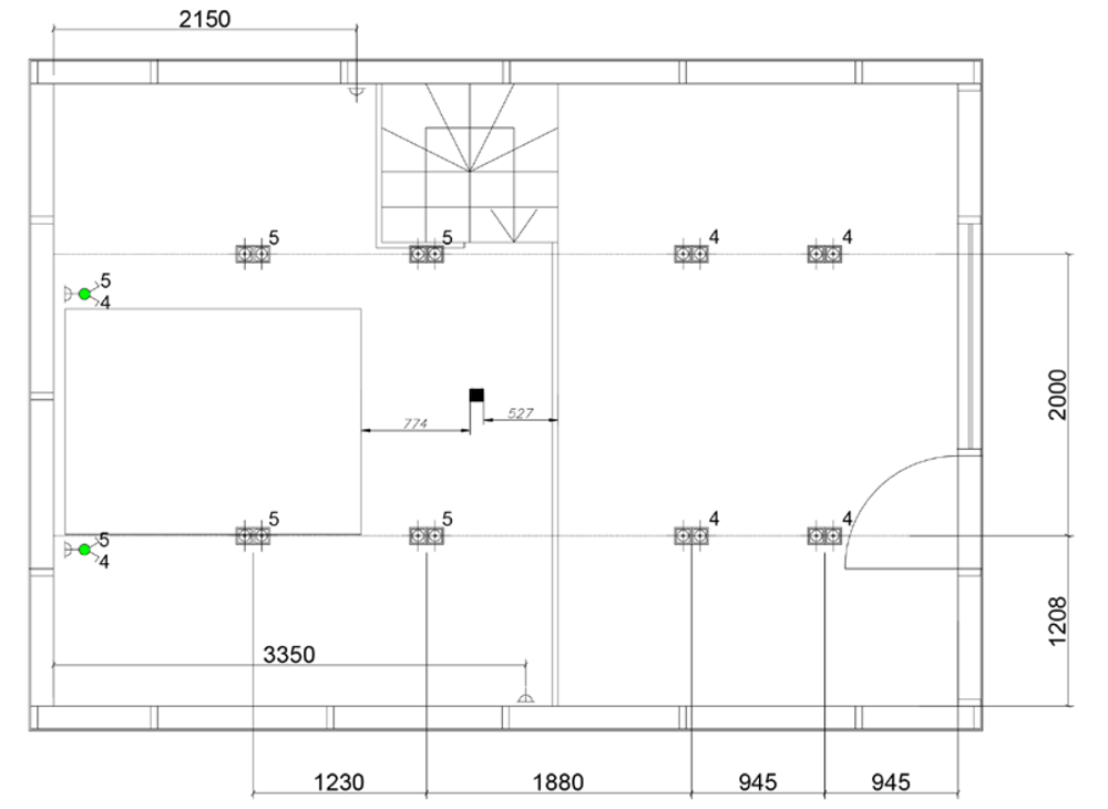
  • Das atmosphärische Zwischengeschoss nimmt fast die Hälfte der Fläche des Hauses ein. Die Höhe vom Boden bis zum Firstbalken beträgt über 180 cm, was in Kombination mit dem geringen 18-Grad-Winkel der Dachneigung eine funktionale und komfortable Nutzung ermöglicht.
    Beleuchtet durch zwei zu öffnende Dachfenster, 68 x 118 cm. Fenster auf dem Expansionsband montiert, nicht wie zuvor auf dem Schaum.
  • Die Konstruktion des Hauses basiert auf skandinavischem C24-zertifiziertem Markenholz. Eine Imprägnierung ist nicht erforderlich.
  • SIP-Paneele sind Elemente von Außenwänden, Trennwänden, Zwischengeschossen und Dach.
  • Isolationsschicht:
    ENV 80 – 15 cm
    Parameter U 0,23
  • Die Fassade des Hauses besteht teilweise aus Holz (Fichte) und Budmat Iron Click Blech „Naht“, in der Farbe RAL 7016 – Anthrazit matt.


Die Vorfertigungszeit im Werk reduziert den Arbeitsaufwand beim konventionellen Hausbau deutlich um mehr als 70 % und senkt die Hausbaukosten erheblich um bis zu 65 %.


Auch die Kontrolle der Arbeit externer Teams durchSier ist einfacher, da jede Bauphase in der Anleitung klar beschrieben ist.


Ein sehr wichtiger Faktor ist: Reduzierung der Arbeitszeit – die mit einer ständigen Erhöhung der Personalvergütung verbunden ist, geringerer Stromverbrauch, weniger Lärm während der Arbeiten, minimierte Abfallmenge und Kosten im Zusammenhang mit ihrer Entsorgung, praktisch keine Trockenzeit während des Baus trocken), Keine Notwendigkeit, das Gebäude nach dem Errichten der Wände zu isolieren (SIP-Platten haben einen 15 cm dicken EPS-Kern im Inneren), Reduzierung der Kosten und der Anzahl der Fahrten für fehlende Materialien (alles wird auf einmal geliefert) sowie Reduzierung der Menge an unnötig gekauftem Material, die Möglichkeit der Montage zu jeder Jahreszeit und praktischer Abschluss der gesamten Investition mit Möbeln in weniger als einem Monat ab Arbeitsbeginn.


Das Set besteht aus Materialien namhafter Firmen wie: Budmat, Swiss Krono, MTB Modules, Veka, Marcopol.

Alle Elemente wurden bereits in der Produktionsphase geschnitten und nummeriert.


Zur Zeit beträgt die Ausführungszeit der Bestellung bis zu 90 Tage ab dem Tag der Vertragsunterzeichnung. Wir beginnen die Realisierung des Auftrags mit einer Anzahlung von 40% des Auftragswertes. Die Zahlung des Restbetrages, der 60 % des Auftragswertes beträgt, erfolgt innerhalb von drei Tagen, bevor der Transport unser Lager verlässt oder vor der persönlichen Abholung.


Transport


1)

  • Sie müssen sich keine Gedanken über den Transport machen.


  • Wir kümmern uns umfassend um die Lieferung der Bestellung von unserem Werk an jeden von Ihnen angegebenen Ort auf der Welt.


  • Beim Kauf mehrerer Modelle berechnen wir den benötigten Laderaum individuell unter Berücksichtigung einer oder mehrerer Lieferadressen.


  • Wir kümmern uns um die Zollabwicklung, wir berechnen dafür keine Gebühren.


  • Dokumentationsangelegenheiten vor und während des Transports werden mit Hilfe und Einbindung unserer Logistikabteilung organisiert.


  • Unabhängig davon, ob es sich um einen See- oder Straßentransport handelt, unsere Logistikabteilung kümmert sich um alle Abläufe.


  • Die Transportkosten werden für jede Bestellung individuell berechnet.


  • Alle Materialzertifikate, von der Transportpalette bis zum kleinsten Detail des Sets, fügen wir der Bestellakte bei.


2)

  • Entladen der Ware. Diese Phase wird in der Regel vom Kunden oder seinem Montageteam durchgeführt. Der Entladetermin ist in der Regel einige Tage im Voraus bekannt, sodass Sie sich darauf vorbereiten können.


  • Bei Inanspruchnahme der Dienste externer Montageteams empfehlen wir die Entladung unter deren Mitwirkung.


  • Der erste Schritt nach Ankunft des Transports besteht darin, den Container zu öffnen und die Versandpalette zu lokalisieren, auf der die Fenster platziert sind. Es gibt einen angehefteten Dokumentensatz mit Anweisungen, die Sie durch den gesamten Prozess führen, beginnend mit: Arbeitsschutz, Entladen der Ware, Überprüfung der Menge gemäß der Bestellung anhand der beigefügten Packliste, Lagermethode und der Liste der notwendigen Werkzeuge. Alle diese Stufen wurden Schritt für Schritt markiert. Außerdem enthält das Set eine Online-Anleitung mit QR-Codes.


  • Das manuelle Entladen dauert etwa vier Stunden, wenn drei Personen am Entladen beteiligt sind.


3)

  • Die Montage des Hauses beginnt mit der Platzierung der Elemente auf der Baustelle. Diese Phase wurde, wie jede vorherige und alle nachfolgenden, sehr detailliert in Online- und Papieranweisungen beschrieben, die wir vollständig oder schrittweise von der Website herunterladen.
    Sie müssen sich um keinerlei Befestigungsmittel wie Schrauben oder Montageschaum kümmern. Sie gehören zur Grundausstattung, und die Anleitung sagt uns, wo sie sich befinden, bis die letzten Elemente des Hauses zusammengebaut sind.


  • Die Montagezeit für das MTB ONE Basic Kit beträgt ca. 12 Werktage. Erfahrene Montageteams sind in der Lage, die Arbeiten sogar in 6 Arbeitstagen abzuschließen. Die Obergrenze der Montagezeit hängt von vielen Faktoren ab, wie z. B.: schlechte Wetterbedingungen, der menschliche Faktor, die fehlende Eile und die Umständlichkeit der Monteure.
    Zur besseren Abschätzung der Montagekosten nennen wir auch die empfohlene Personenanzahl auf der Baustelle.
    Normalerweise arbeiten drei Personen optimal beim Bau dieser drei Häuser. Eine dieser Personen ist der Hauptmonteur, der das gesamte Team leitet und die wichtigsten Tätigkeiten selbstständig ausführt, die anderen beiden Personen sind Personen mit durchschnittlichen Baukenntnissen.


  • Die schwersten Elemente des Sets wiegen 70 kg, sodass der Einsatz von Kränen und Hebezeugen nicht erforderlich ist, sofern die örtlichen Gesundheits- und Sicherheitsvorschriften nichts anderes vorsehen (diese Vorbehalte sind auch im Handbuch aufgeführt).


FAQs

  • • Was bedeutet FLAT PACK?

    Wenn Sie sich für ein FLAT PACK-Modell entscheiden, werden Sie auf jeden Fall Kosten sparen. Der Kauf ist billiger und der Zusammenbau ist kostenlos! Das heißt, wenn Sie Lust auf ein bisschen Heimwerkerzeit haben.


    KIT HOUSE von MTB Modules ist eine Revolution auf dem Baumarkt. Wir sind ein weltweiter Anbieter von Häusern, die mit Hilfe von Montageanleitungen zusammengebaut werden. Es ist auch eine Revolution in Bezug auf die Kosten und die Bauzeit. Kennen Sie eine andere Technologie, mit der Sie in weniger als einer Woche ein echtes und dauerhaftes Haus bauen können?


    Wenn Sie an READY MADE-Häusern interessiert sind, finden Sie diese in unserem Angebot.

  • • Was bedeutet KIT HOUSE?

    KIT HOUSE von MTB Modules ist eine Revolution auf dem Baumarkt. Wir sind ein weltweiter Anbieter von Häusern, die mit Hilfe von Montageanleitungen zusammengebaut werden. Es ist auch eine Revolution in Bezug auf die Kosten und die Bauzeit. Kennen Sie eine andere Technologie, mit der Sie in weniger als einer Woche ein echtes und dauerhaftes Haus bauen können?


    Wenn Sie an READY MADE-Häusern interessiert sind, finden Sie diese in unserem Angebot.

  • • Was ist ein SIP-Haus?

    SIP-Häuser verwenden isolierte Wand- und Dachpaneele, die bis zu 15-mal luftdichter sind als herkömmliche Konstruktionen, was zu mehr Komfort und langfristiger Haltbarkeit führt. Ein neues Haus, das mit strukturell isolierten Paneelen gebaut wurde, reduziert Luftbewegungen und Zugluft, Feuchtigkeit und Lärm und hilft, das Eindringen von Staub und Allergenen zu verhindern.

  • • Brauchen Sie einen Kran, um SIP-Häuser zu installieren?

    Nein, SIP-Paneele zeichnen sich unter den Baumaterialien nicht nur durch ihre Haltbarkeit, sondern auch durch ihr Gewicht aus. Dank ihres optimalen Gewichts ist für die Montage der modularen Häuser kein Kran erforderlich. Das schwerste Bauteil des Bausatzes sind die Fenster.

  • • Sind modulare Gebäude dauerhaft?

    Strukturell sind die Gebäude mit MTB-Modulen gleichwertig mit konventionellen Gebäuden. Auch ihre Lebensdauer und Garantien sind ähnlich. Allerdings ist die Gesamtqualität von Modulgebäuden aufgrund des kontrollierten Herstellungsprozesses viel höher.

  • • An wen ist das Angebot gerichtet?

    Das Angebot ist nur für Sie. Wir liefern unsere Häuser an Privatpersonen, aber auch an bedeutende Bauherren, die die Nase voll haben von der traditionellen Bautechnik, die viele Probleme und Unsicherheiten verursacht.

  • • Warum bevorzugt MTB Modules langfristige Partnerschaften?

    Die Vorteile der modularen Fertigung sind vielfältig, aber eine langfristige Partnerschaft bietet die Möglichkeit, zu investieren und gemeinsam das Produkt zu optimieren, um einen Mehrwert zu schaffen und gleichzeitig die Kosten zu senken.

  • • Wer installiert die Module?

    MTB Modules bietet Schulungen und technische Berater an, um den Generalunternehmer bei der Installation der Module vor Ort zu unterstützen. Wir können auch das Installationsteam des Generalunternehmers in unseren Fabriken schulen, bevor die Module geliefert werden. In bestimmten Fällen kann MTB Modules die gesamte strukturelle Installation der Module am Gebäude anbieten.

  • • Wo wird das Produkt hergestellt?

    Das Bausätze werden in Polen hergestellt und montiert.

  • • Was ist die typische Vorlaufzeit für Module?

    Bei einigen Hausmodellen beträgt die Vorlaufzeit 24 Stunden. Oft haben wir die Häuser versandfertig auf Lager. In der Regel gehen wir von einer Fertigstellungszeit von 22 bis 60 Tagen aus, was bedeutet, dass wir das Haus in weniger Zeit als die Aushärtung des Betons liefern. Der genaue Liefertermin wird natürlich mit Ihnen zuvor abgestimmt, damit Sie entsprechende Vorbereitungen treffen können.

  • • Wie hoch ist das typische Auftragsvolumen?

    Es ist möglich, 4.800 Häuser pro Monat zu produzieren.

  • • Welche Art von Fundament benötige ich?

    Die Module können auf einem Schwellenwandsystem, einem Betonsockel, einem Stahlsockel oder einer Erdgeschossplatte aufgestellt werden.

    Für einige unserer KIT HOUSE Hausmodelle bieten wir vorgefertigte Bodenplatten an, die der Bauherr auf vorbereiteten Betonpfählen verlegt. Alle Abmessungen und Abstände der Betonpfähle werden auf Wunsch des Bauherrn mitgeteilt.

  • • Ist es zeitsparend?

    80 bis 90 % der Bauarbeiten werden in einer Fabrik durchgeführt, wodurch das Risiko von witterungsbedingten Verzögerungen gemindert wird und die Projekte in deutlich geringerer Zeit abgeschlossen werden können, die für herkömmliche Bauarbeiten benötigt wird.

  • •Verliere ich meine Garantie, wenn ich ein Haus selbst zusammenbaue?

    Sie verlieren nicht die Garantie, wenn Sie das Haus selbst montieren.

  • • Ist es schwierig, das Haus zu montieren?

    Describe the item or answer the question so that site visitors who are interested get more information. You can emphasize this text with bullets, italics or bold, and add links.
  • • Gibt es zusätzliche Optionen für KIT HOUSE?

    Ja. In usnerem Katalog und während der Bestellphase können Sie zusätzliche Optionen auswählen, die zu dem ausgewählten Hausmodell passen. Sie erhalten die zusätzlichen Kits in einem Transport.

  • • Wer baut das Haus nach der Anlieferung auf der Baustelle zusammen?

    Sie bauen das Haus anhand der beigefügten Anleitung selbst auf. Außerdem steht Ihnen eine Multimedia-Version der Montageanleitung zur Verfügung, die Ihnen hilft, ebenso wie unsere Fernhilfe. Die besten Ingenieure der Baubranche haben von Anfang an an unseren Produkten mitgearbeitet. Sie sind es, die die lesbarste und benutzerfreundlichste Schritt-für-Schritt-Anleitung erstellt haben. Es ist ganz einfach.

  • •Machen wir individuelle Projekte oder Modelle?

    Ja. Wir machen individuelle Projekte, aber nur für die Massenproduktion.

  • • Kann ich vor dem Kauf Änderungen an bestehenden Designs vornehmen?

    Änderungen an bestehenden Modellen sind nicht möglich. Wir hoffen, dass Sie Ihre Bedürfnisse mit einem anderen Hausmodell aus unserem breiten Angebot in Einklang bringen werden.

  • • Verfügen alle Materialien des Sets über Bauzeugnisse?

    Alle Elemente des Sets verfügen über die erforderlichen Zertifikate, selbst die kleinsten Schrauben. Wir verwenden nur Materialien von den besten und bekanntesten Herstellern.

  • • Wie lange ist die Garantie für KIT HOUSE?

    Für einige Komponenten des Sets beträgt die Garantie bis zu 25 Jahre.

    Die Garantiezeit für einzelne Elemente ist im Angebot jedes Hauses separat beschrieben.

  • • Sind SIPs gasfrei?

    Keine schädlichen Chemikalien


    Die zur Herstellung von SIPs verwendeten Komponenten (Schaumstoff, orientierte Spanplatten und Klebstoff) erfüllen einige der strengsten Normen für die Luftqualität in Innenräumen. Für EPS-Schaum wird Pentan verwendet, ein FCKW-freies Treibmittel, das sich kurz nach der Projektion verflüchtigt. Die Schaumstoffkerne haben keine Ausgasungen.

  • • Sind SIPs tragfähig?

    SIP-Wände können beträchtliche vertikale und horizontale Lasten mit einer reduzierten Innenbeplankung aufnehmen. Die von der SIP-Wand getragene Last wird von den OSB-Häuten auf den Boden übertragen und durch den vollständig verklebten Dämmkern in Position gehalten.

  • • Sind SIPs schalldicht?

    Die Schalldämmung einer SIP-Wand hängt von der Dicke des verwendeten Gipskartonwands, dem Außenanstrich und der Dicke des verwendeten Schaumkerns ab. SIPs sind besonders effektiv bei der Blockierung von hochfrequentem Lärm, und die meisten Hausbesitzer bemerken den ruhigen Komfort eines SIP-Hauses.

  • MTB ONE

    Nutzfläche ca. 42m² über zwei Ebenen

    Erfahren Sie mehr
  • MTB FOUR

    Nutzfläche ca. 52m² über zwei Ebenen

    Erfahren Sie mehr
  • MTB SEVEN

    Nutzfläche ca. 93m² über zwei Ebenen

    Erfahren Sie mehr